VANA S DVÍŘKY MEDICA 100x68 PRAVÁ bezbarierová pro koupání vsedě. Určeno pro osoby s pohybovým omezením, osoby se zdravotním postižením a seniory
Kód: H5620-100-RSouvisející produkty
Detailní popis produktu
Vana do koupele vsedě s dveřmi a sedákem o velikosti 1000x680x900 mm je skvělým řešením pro lidi, kteří preferují pohodlí a bezpečnost při koupání. Tato speciálně navržená vana je ideální pro seniory, osoby se zdravotním postižením nebo s pohybovým omezením, které mají potíže s nastupováním a vystupováním z tradičních van. Vana je navržena tak, aby se i osoba pohybující se na invalidním vozíku mohla sama postarat o vlastní hygienu.
Technické specifikace:
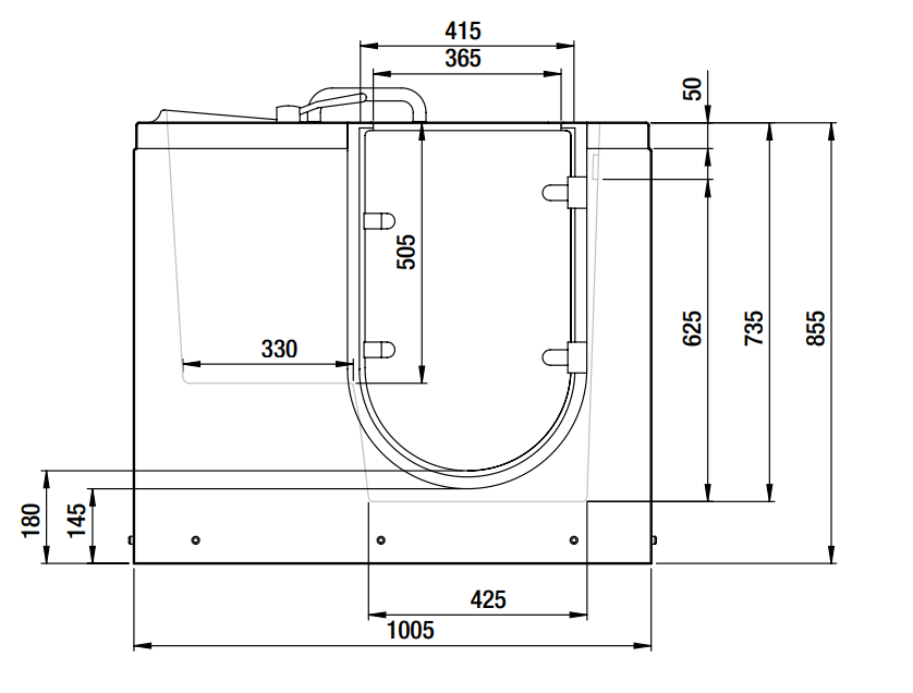
Montážní parametry:
- Orientace: pravostranná
- Šířka: 1000 mm
- Hloubka : 680 mm
- Výška: 900 mm
- Ostatní rozměry dle technického výkresu
Provedení:
- Akrylová deska ( 0% ABS)
- Pevný prostorový rám usazený na 5 nohách
- Dveře z tvrzeného skla o tloušťce 8 mm
- Odolná těsnění dveří se pevným nerezovým systémem pohodlného zavírání a zárukou těsnosti
- Protiskluzové dno vany
- Rukojeť vyrobená z nerezové oceli.
- UPOZORNĚNÍ: boční panel je na straně hlavy, nohy a dvířka jsou na straně stěny (pro uchycení madel na stěně)
nákres PDF:vana s dvirky 100x68 prava-medica-h5620


Praktická vana s dveřmi a ergonomickým sedákem: použití bez námahy pro starší a pohybově omezené osoby.
Vana o velikosti 1000x680x900 cm je vybavena bočními dveřmi, které umožňují snadný vstup a výstup do vany. Díky tomu člověk nemusí překonávat vysoký práh ani provádět složité pohyby, což zajišťuje větší pohodlí a bezpečnost při používání vany. Klíčovou vlastností vany je ergonomické sedátko, které bylo speciálně navrženo tak, aby poskytovalo pohodlné a stabilní místo k sezení při koupání. Vana do koupele vsedě s dveřmi a sedákem o velikosti 115x70 cm je kompaktní model, který se skvěle hodí do menších koupelen. Díky svým rozměrům se snadno vejde do prostoru koupelny a zároveň poskytuje dostatečný prostor pro relaxační koupel vsedě. Vana obsahuje madlo a protiskluzovou úpravu uvnitř vany, které poskytují dodatečnou podporu a bezpečnost při vstupu, výstupu a pohybu uvnitř vany.
Vany vyrobené z akrylu nabízejí mnoho výhod, jako je odolnost, snadné čištění a tepelná izolace
Akryl je odolný materiál, který si zachovává své vlastnosti po dlouhou dobu. Akrylátové vany jsou odolné proti mechanickému poškození, jako jsou škrábance a odštípnutí. Povrch vany z akrylu je hladký a netoxický, což usnadňuje její udržování v čistotě. Pro důkladné vyčištění vany stačí použít jemný čisticí prostředek a měkký hadřík. Tento materiál minimalizuje tvorbu usazenin vodního kamene a mýdla, nereaguje s prostředky pro každodenní hygienu díky tomu lze i delší dobu zanedbanou vanu snadno uvést do původního stavu. Akrylát je tepelně izolační materiál, což znamená, že voda ve vaně udržuje teplotu déle než u jiných typů van. Můžete si tak užívat delší a uvolněnější koupele.
Vana je k dispozici v levostranném i pravostranném provedení. V naší nabídce jsou také vany s dvířky ve větších velikostech. Ke každé vaně lze namontovat hydromasážní systém. Vany lze vyrobit v libovolné konfiguraci.
Doplňkové parametry
| Kategorie: | Vany s dvířky |
|---|---|
| Hmotnost: | 101 kg |
| EAN: | 5904305717791 |
| materiál: | nerez, akrylát |
| šířka: | 100 cm |
| výška: | 90 cm |
| hloubka: | 68 cm |
| typ vany: | obdélníková |
| záruka: | 5 let |
Hodnocení produktu
Buďte první, kdo napíše příspěvek k této položce.
Diskuze
Buďte první, kdo napíše příspěvek k této položce.
Pouze registrovaní uživatelé mohou vkládat příspěvky. Prosím přihlaste se nebo se registrujte.
